Vermietung und Verkauf durch: 

 

Friemuth Immobilien GbR mbH

Halberstädter Straße 23
33106 Paderborn

Telefon: (05251) 1772-26
Telefax: (05251) 1772-44
E-Mail: immo@friemuth.de

Ansprechpartner(in): Frau Brüseke

repräsentative Büroflächen

zu vermieten 9.726,00 € 5722 Treffer

Objektbeschreibung

Das 5-geschossige Bürogebäude liegt direkt an der Hauptverkehrsstraße der Bahnhofstraße und ist gleichzeitig an der Rathenaustraße (Einfallstraße) gelegen. In unmittelbarer Nähe befindet sich der Hauptbahnhof Paderborn.

Eine gute Verkehrsanbindung ist durch die in der Nähe liegenden B 1, B 64 und A 33 gegeben. Die Innenstadt ist in wenigen Minuten fußläufig zu erreichen.

Der Parkplatz vor dem Gebäude, die gehobene und moderne Ausstattung sowie auch zwei Aufzüge runden das Objekt ab.

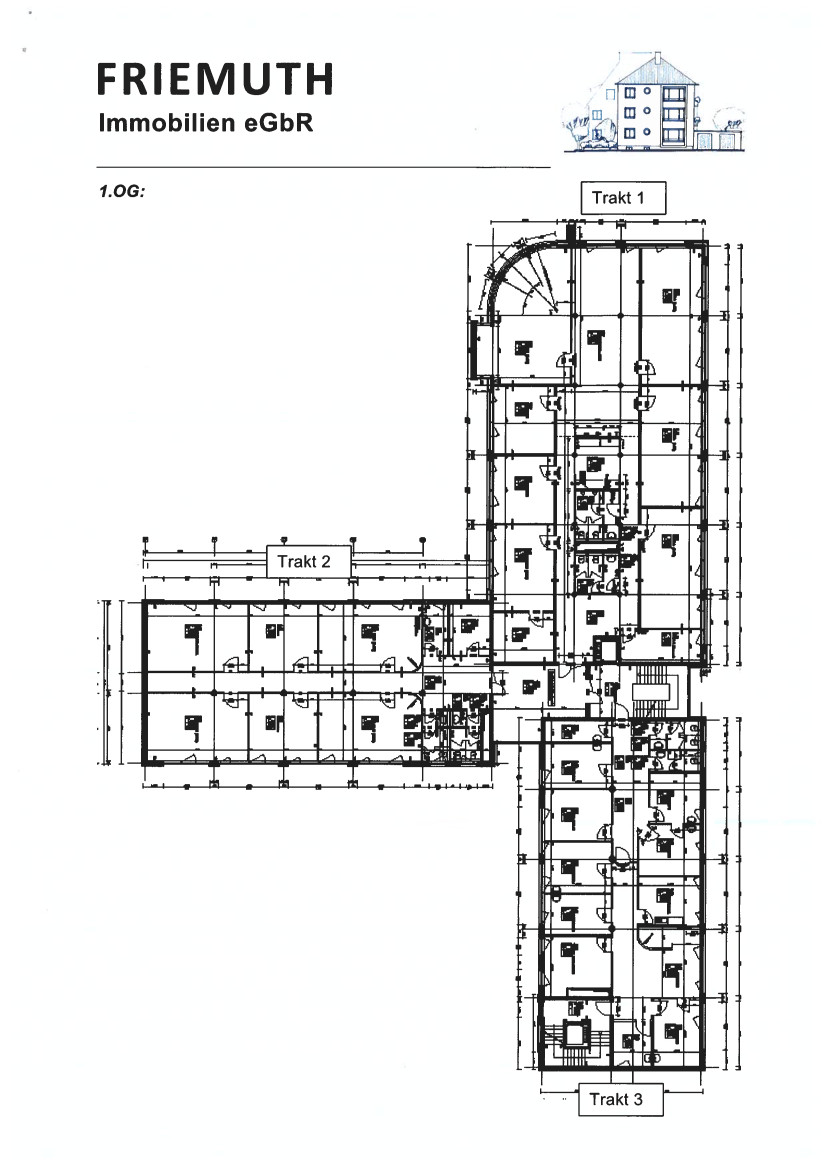
Es werden Büroflächen in der Größe von 972,62 m² ab 01.01.2026 im Trakt 1, Trakt 2 und Trakt 3 frei.

Die Fläche kann geteilt werden, so dass eine Anmietung von kleineren Flächen möglich ist.

DIe genaue Lage und die Aufteilung können SI in dem Grundriss erkennen.

 

 

Zusammenfassung

  • Ortsangaben Bahnhofstraße 50, Paderborn, Deutschland
  • Preis 9.726,00 €
  • Objekttyp: gewerbliches Objekt
  • Status: zu vermieten
  • Fläche: 972,62 m2
  • Zustand: gepflegt
  • Bezugsfrei ab: 01.01.2026

Energieausweis

Energieausweistyp:
Bedarfsausweis
Energieverbrauchskennwert:
24 kWh/(m2 * a)
Wesentliche Energieträger:
  • Gas
Baujahr:
2006

Objekteigenschaften

  • Personenaufzug
keine Haustiere erlaubt

Karte

No image

Marieluise Brüseke

E-Mail: immo@friemuth.de

Kontaktformular

Vermietung und Verkauf durch: 

 

Friemuth Immobilien eGbR

Halberstädter Straße 23
33106 Paderborn

Telefon: (05251) 1772-26
Telefax: (05251) 1772-44
E-Mail: immo@friemuth.de

Ansprechpartner(in): Frau Brüseke

repräsentative Büroflächen

Bahnhofstraße 50, Paderborn, Deutschland
9.726,00 €