Vermietung und Verkauf durch: 

 

Friemuth Immobilien GbR mbH

Halberstädter Straße 23
33106 Paderborn

Telefon: (05251) 1772-26
Telefax: (05251) 1772-44
E-Mail: immo@friemuth.de

Ansprechpartner(in): Frau Brüseke

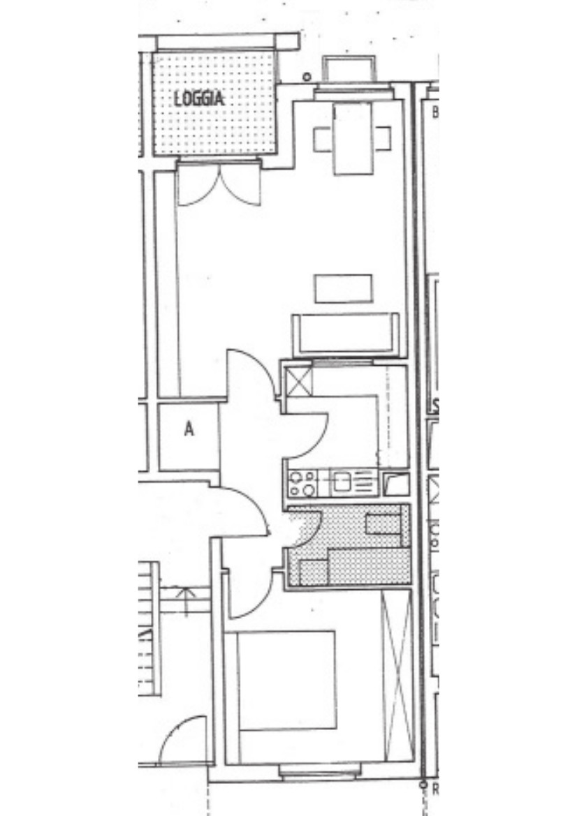
2 ZKBB in Paderborn, Kaukenberg

zu vermieten 338,00 € 6799 Treffer

Objektbeschreibung

schöne 2 Zimmer-Wohnung im gepflegten 8-Familienhaus zu vermieten.

Die Wohnung ist im EG. Die Wohnung  kann ab 01.05.2022 bezogen werden.

Einkaufsmöglichkeiten (Netto etc.) sind in der Nähe.

In der Nähe ist eine Bushaltestelle, so dass hier eine gute Verkehrsandingung besteht.

Zu der Wohnung gehört ein Stellplatz in der Tiefgarage.

Zusammenfassung

  • Ortsangaben Kaukenberg 18, Paderborn, Deutschland
  • Preis 338,00 €
  • Objekttyp: Wohnung/Haus
  • Status: zu vermieten
  • Fläche: 56 m2
  • Zimmer: 2
  • Kaution: 700,00 €
  • Zustand: gepflegt
  • Stockwerk: EG
  • Bezugsfrei ab: 01.05.2022

Energieausweis

Energieausweistyp:
Verbrauchsausweis
Energieverbrauchskennwert:
49 kWh/(m2 * a)
Wesentliche Energieträger:
  • Gas
Baujahr:
1997
Erstellungsdatum:
17.06.2008

Objekteigenschaften

  • Balkon/Terrasse
  • Keller
  • Garage/Stellplatz
keine Haustiere erlaubt

Karte

No image

Marieluise Brüseke

E-Mail: immo@friemuth.de

Kontaktformular

Vermietung und Verkauf durch: 

 

Friemuth Immobilien eGbR

Halberstädter Straße 23
33106 Paderborn

Telefon: (05251) 1772-26
Telefax: (05251) 1772-44
E-Mail: immo@friemuth.de

Ansprechpartner(in): Frau Brüseke

repräsentative Büroflächen

Bahnhofstraße 50, Paderborn, Deutschland
9.726,00 €